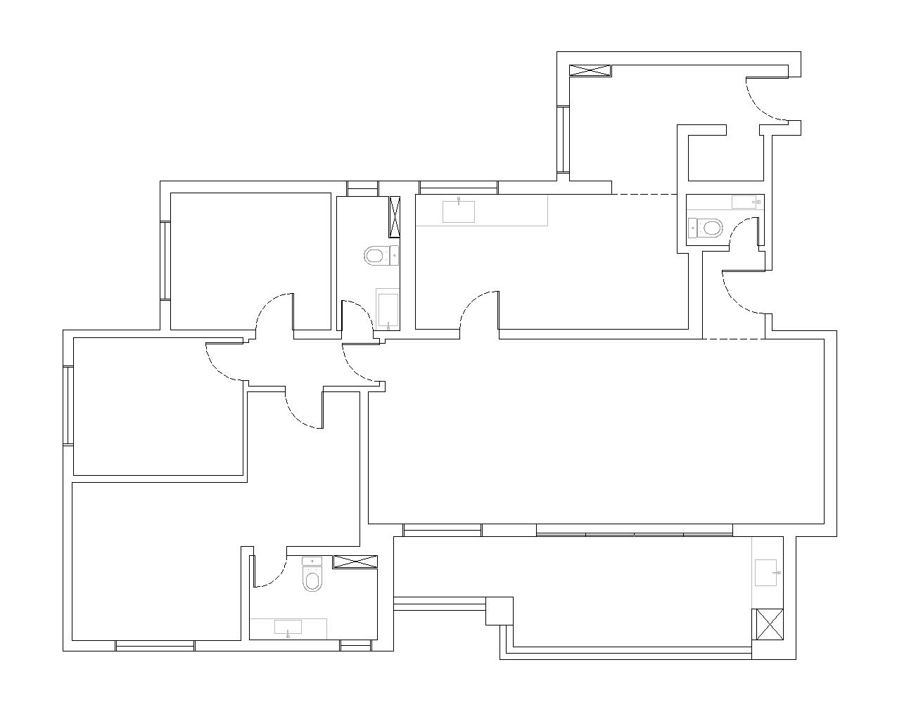
O Apartamento Pateo é um projeto que valoriza o convívio dos moradores através da integração dos espaços de estar.
A partir das demolições, criamos um ambiente amplo e iluminado, onde o desenho do novo layout de mobiliário redefiniu os fluxos de circulação e acrescentou dinâmica e fluidez entre os espaços.